Bredgade 21A, Hedensted

Udlejet
 
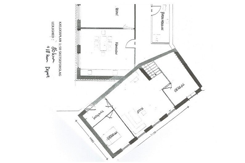
Stuelejlighed med to værelser og stue, samt i underetagen - en halv etage ned - er der et stort køkken med spiseplads, badeværelse med brus og et disponibelt rum. 
 
Lejligheden er total renoveret i 2014.
  • 82 kvm + 16 kvm disponibelt rum
  • Stueplan
  • Parkering
  • Delevenling
Klik på billederne for fuld størrelse

Her finder du lejligheden

Spangsberg Ejendomme A/S | CVR: 25283449 | Tirsbækvej 24, 7120 Vejle Øst  | Tlf.: 3115 3100